駅近 園田駅歩4分 新築住宅 3LDK 3780万円
new

(外観) (間取) (外観) (内装) (内装) (内装) (内装) (内装) (内装)
価格
3780万円
新築戸建
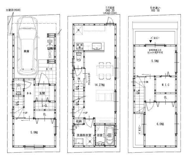
間取
3LDK

所在地 兵庫県尼崎市東園田町5丁目
交通
阪急神戸本線園田駅 徒歩4分
築年月 新築/中古 新築・未入居
面積 計測方式
バルコニー 向き
建物階数 部屋階数 3階
部屋/区画番号 総戸/区画数
建物構造 木造
敷地全体面積 50.64m² 延べ床面積 92.11m²
間取内容
駐車場   取引態様 一般
引渡/入居時期 期日指定 現況 未完成
地目 宅地 用途地域
周辺環境
設備・条件
物件番号
自社物 先物 状態

~もうすぐ完成します~

『園田駅歩4分の好立地』
・お洒落な外観です
・玄関ポーチも広く、SCLとシューズBOXまで
   あり楽々収納できます
・嬉しい2階浴室タイプになります
  もちろん暖房・乾燥機付き(1坪タイプ)
・トイレ2ヶ所(1階と2階)
・プライバシー重視のリビングです
 高窓採用で明るく家具の配置も容易です
・インナーガレージで大事なお車にも優しいです
・買物施設は駅下のKOHYOがあり便利です
 その他、コープ、マルハチ、サンディ、業務スーパーも近くて便利
・足を延ばせば、コストコとロピアもあります
~新居としてのイメージを現地で体感して下さい~
~新居のお探しをお手伝い致します~
~お気軽にお問い合わせください~

 

(内装)(内装)
※物件掲載内容と現況に相違がある場合は現況を優先と致します。
・・・・・・・・・・・・・・・・・・・・
フジコウサン株式会社
〒661-0971
兵庫県尼崎市瓦宮1丁目4番7号
TEL : 06-6491-3769 FAX : 06-6492-6669
免許番号:兵庫県知事免許(1)第204489号
・・・・・・・・・・・・・・・・・・・・

エラー: コンタクトフォームが見つかりません。